
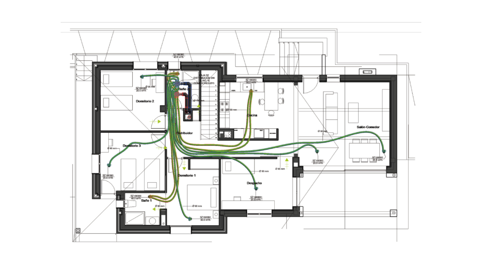
1
Toma de aire fresco
2
Equipo de ventilación
3
Redes de distribución
4
Bocas de insuflación
5
Bocas de extracción
6
Expulsión de aire viciado
Diseñado específicamente para hogares independientes, este sistema individualizado combina tecnología avanzada con flexibilidad total. Cada vivienda cuenta con un recuperador de calor compacto y una red de conductos de alta eficiencia, lo que garantiza un control absoluto sobre la ventilación y la calidad del aire. Este diseño no solo mejora el confort térmico y acústico, sino que también maximiza el ahorro energético. Perfecto para quienes buscan un hogar saludable y sostenible, adaptado a sus necesidades específicas.
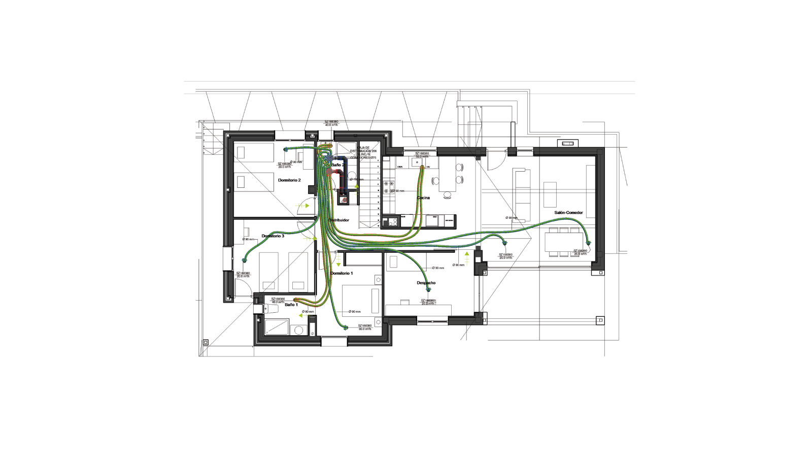
Ejemplos estudios con BIM

